Metronom Theater Oberhausen – Stufenbeleuchtung von Bissinger Lights
Das Metronom Theater in Oberhausen zählt zu den führenden Spielstätten Deutschlands. Für den sicheren und atmosphärisch abgestimmten Betrieb wurde eine moderne LED-Stufenbeleuchtung erforderlich.
Bissinger Lights übernahm die Planung, Fertigung und Montage einer maßgeschneiderten Lösung mit insgesamt 384 Metern des LED-Stufenprofils SL2. Die Installation bietet warmweißes, nicht blendendes Licht, ist notstromfähig und DMX-dimmbar – entwickelt speziell für die Anforderungen einer Versammlungsstätte.
Ausgangssituation
Die bestehende Beleuchtung entsprach nicht mehr den aktuellen technischen und sicherheitstechnischen Anforderungen.
Ziele des Projekts:
- Deutliche Erkennbarkeit der Stufenkanten bei unterschiedlichen Lichtverhältnissen und sichere Besucherführung während Vorstellung, Einlass und Räumung
- Integration in die vorhandene elektrische Infrastruktur
- unauffällige, architektonisch stimmige Gestaltung
Projektumfang
Bissinger Lights hat im Metronom Theater:
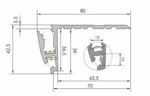
Alle Aufgänge mit dem LED-Stufenprofil SL2 ausgestattet. Insgesamt 384 Meter Profil auf Maß gefertigt und mit rund 760m LED-Bänder mit maximal 1 W/m Leistungsaufnahme bestückt.
Warmweißes Lichtbild abgestimmt auf Saal- und Bühnenbeleuchtung. Die Stufenbeleuchtung wurde in die Bestandsverkabelung integriert und sind jetzt notstromfähig und DMX-steuerbar ausgeführt.
Montage
Die Stufenprofile wurden werkseitig auf Maß gefertigt.
Vor Ort erfolgten:
präzise Anpassung an die vorhandenen Stufen
Anschluss an die geprüfte Bestandsinstallation
enge Abstimmung mit der Haustechnik und dem laufenden Theaterbetrieb
Ergebnis
Die neue Beleuchtung verbessert die Orientierung und Sicherheit des Publikums deutlich.
Die homogene Lichtlinie fügt sich harmonisch in den Raum ein und sorgt für ein ruhiges, professionelles Erscheinungsbild.
Das System erfüllt sämtliche Anforderungen an Energieeffizienz, Notstromfähigkeit und Wartungsfreundlichkeit.
Warum Bissinger Lights
- Spezialist für Stufenbeleuchtung in Theatern, Kinos und Versammlungsstätten
- individuelle Lösungen statt Standardprofile
- eigene Planung, Fertigung und Montage
- langjährige Erfahrung in überregionalen Projekten
- geprüfte Technik mit klarer Dokumentation und definierten Stromkreisen
Beratung und Kontakt
Planen Sie die Modernisierung oder den Neubau Ihrer Stufenbeleuchtung?
Bissinger Lights bietet Ihnen eine technisch ausgereifte, normgerechte und optisch dezente Lösung – abgestimmt auf Ihre Anlage und Ihren Spielbetrieb.
Kontaktieren Sie uns für ein unverbindliches Beratungsgespräch mit Projektangaben, Saalplan und Fotos. Gemeinsam entwickeln wir Ihr passendes Beleuchtungskonzept.












